压板

压板

钢制

应用领域:

用于固定真空吸盘。

说明:

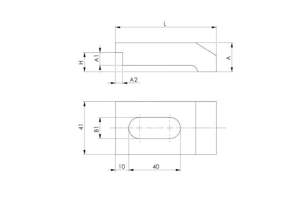
订货号B1L可使用的螺栓可使用的螺栓爪宽AA1xA2H重量[g]
7468216.578M12,14,161/2,5/810022.510x5.515685


留言

+86-0532-87836677

-1
-1